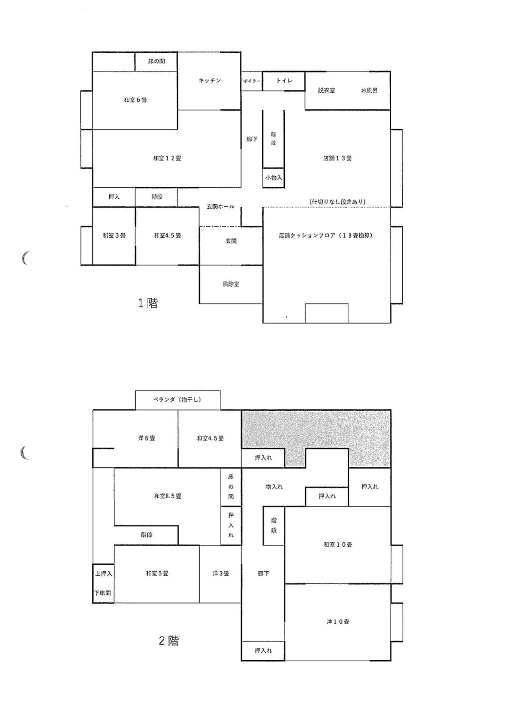
最上町赤倉温泉エリアは、国民体育祭スキー競技会場にもなったスキー場の麓にある。ここで見つけたのが、店舗兼住宅として使われていたお宅。主は、現在別邸に住み、日帰り温泉の支配人をしている。元カメラマンのダンディーだ。地域づくりにも貢献しており、赤倉温泉エリアを元気にしたいという思いが強い。近くには、カフェを始めた移住者で移住コーディネーターもしている素敵な女性が活躍していたり、面白い方々が暮らしている。
伝説によれば、慈覚大師円仁(794年―864年)が山寺立石寺を開山した3年後の奥羽地方巡の折に今の赤倉温泉にあたる地域を訪れた。その際、地元の村人が小国川の水で傷を負った馬を癒している姿を見た円仁が、手にした「錫杖(しゃくじょう)」で川底を突くと石の間から薬湯が湧き出たと言われている。
さて、このお宅、店舗跡の活用が楽しそうだ。ガレージにして愛車を眺めたり、もちろん店舗としても使える。名物料理を考案して、開業してもいい。スキー好きの集いの場にしても楽しそうだ。DIYもやり放題で、町のリフォーム支援なども活用したい。
一人がスキーのストックで雪面を突いても何も出ないかもしれないが、多くの方で突いてみると、面白い元気が湧いてくるかも知れない。


-1018x1440.jpg)


















