PROPERTY INFO

物件情報


【シ25001】くまのこどう?

新庄市

450万円

昭和52年建築のこのお宅。地元では、東山と呼ばれる地域にある。その名のとおり新庄市の東の山麓、一番山沿いに佇んでいる。東山と言えば、“出羽の雪のかげりの色”と例えられる澄んだ青みの「なまこ釉」が特色の「新庄東山焼き」が頭をよぎる。まさに窯元は、すぐ近くにある。「天保12年新庄戸沢藩御用窯として開窯」とあるので、180年余の歴史がある。

さて、玄関前に立つと左手に自宅と一体となったガレージが付いている。玄関を入ると、昭和の雰囲気が漂う。多目的室という設定の部屋が1階と2階にあり、おそらく家事や洗濯に活躍してくれそうな配置になっている。360度ビューでご覧いただきたい。立地が、道の一番奥なので騒音などはあまり気にしなくてよいことだろう。

山麓の一番奥というと、2025年全国で問題になったクマの出没。ここは明らかにクマの生活圏に近い。安全ですなどと無責任なこともお知らせできないので、ご承知おきいただきたい。

私が思うに180年よりもずっと昔からクマが生息していたエリアであろう。もちろん、共生していたであろうし、実際の被害は報告されていない。だって、新庄市はJR新庄駅でクマが捕獲されたりするのだから。田舎暮らしとは、そういうものだ。静かで良き立地の一軒だ。

物件詳細

区分

売買

敷地面積

336.80㎡

築年数

築42年(昭和52年建築、昭和60年増築、平成11年増築)

設備

電気(引き込み済み)・ガス(プロパンガス)・風呂(ガス)・水道・浄化槽・トイレ(水洗・洋式) ※多少の補修は必要です。

備考

所在地

新庄市金沢1439-31

建物面積

1階:110.18㎡、2階:57.96㎡

建物構造

木造2階建

交通

市営バス まちなか循環線 東山町停留所より徒歩で約8分(550m)・新庄駅より車で約5分(1.8km)

周辺施設までの所要時間

新庄市立日新小学校より徒歩で約26分(1.8km)・新庄市立日新中学校より徒歩で約31分(2.1km)・新庄市役所より車で約8分(2.7km)

価格

450万円

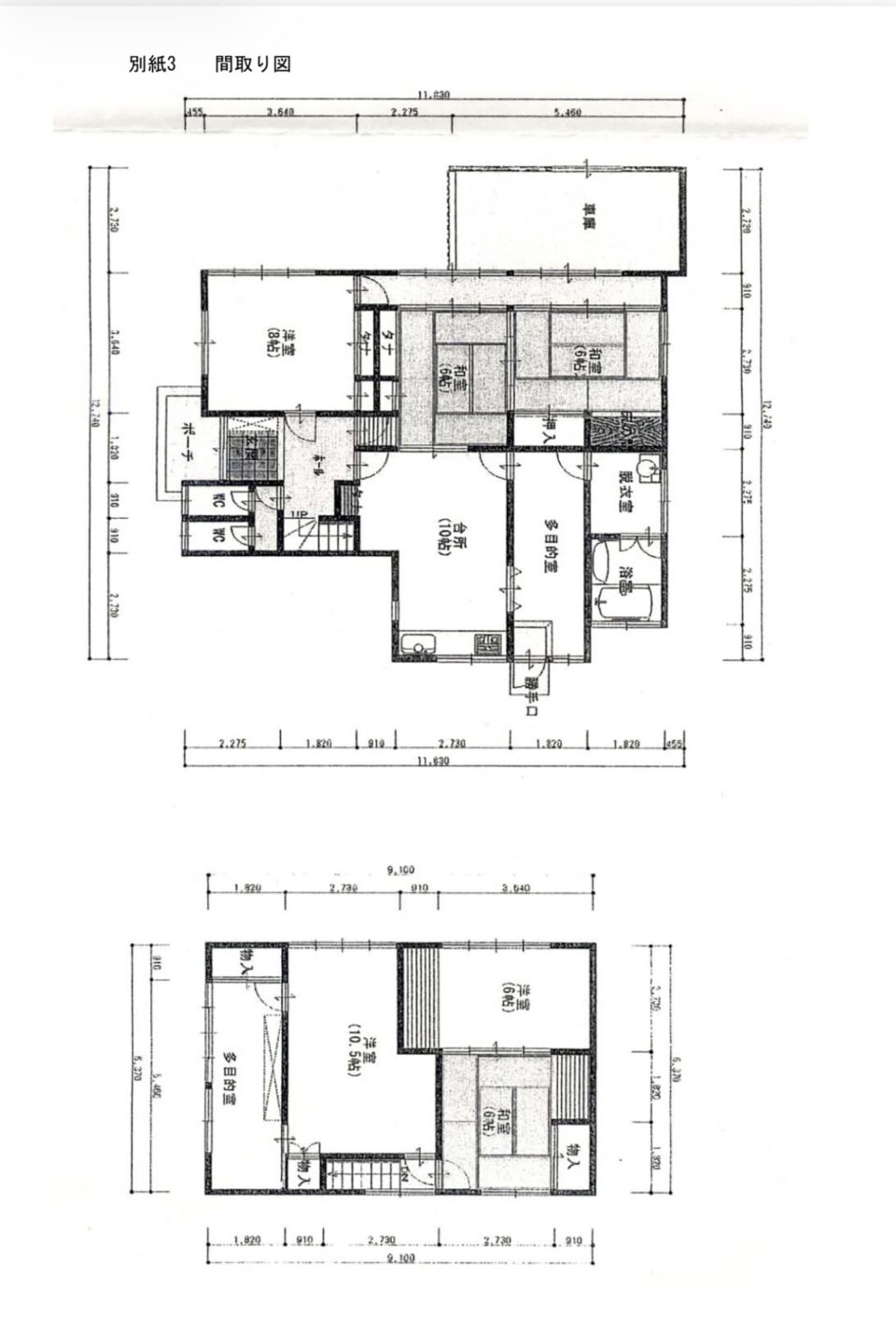
間取り

1階:居間(8畳)・台所(10畳)・風呂(0.75坪)・トイレ(0.75坪)・洗面台(0.75坪)・洋室(10畳1部屋・6畳1部屋)・和室(6畳)、2階:和室(8畳1部屋・6畳2部屋)

駐車場・倉庫

車庫あり

特記事項

最終更新日

20251201

Map

360° View

お問い合わせ先

一般社団法人温故知新

〒996-0091
山形県新庄市十日町6000-1
創造交流施設2階